CARREGANDO...

Apartamento na planta Alto Butantã 250m da linha Amarela-entrega Abr/Ma 25

Ativo
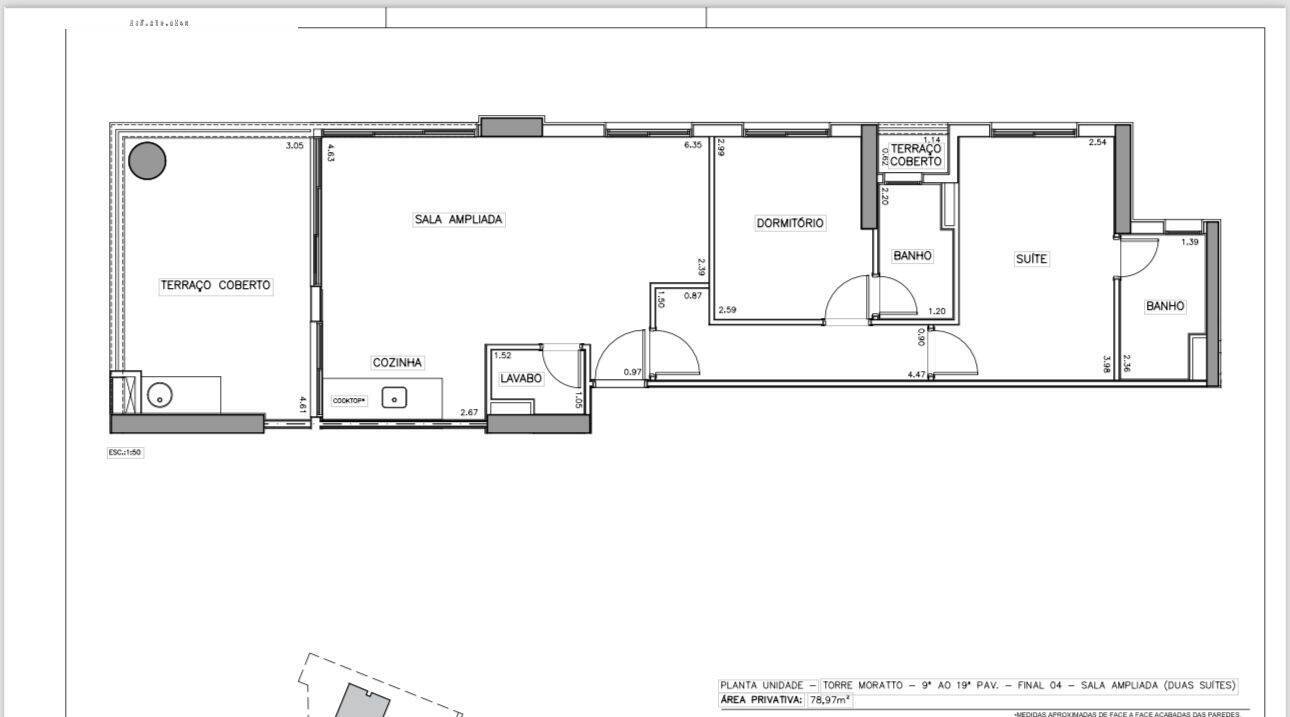
2 dormitórios (2 suítes) 3 banheiros 1 vaga 79m² (área útil)

Sobre o imóvel

Imóvel em fase final de construção na Avenida Professor Francisco Morato, 100, apt 94 - ao lado da Marginal Pinheiros. Previsão de entrega é entre março e maio de 2025 e fica a mais ou menos 250m da Estação Butantã da linha amarela.enbsp;


São 2 suítes + 1 lavabo, dois quartos, 1 garagem e mais detalhes você encontra na foto da planta. As fotos aqui publicadas são do vídeo da maquete e há uma foto do prédio em construção, mas as obras estão já bem avançadas agora. Valores de IPTU e condomínio ainda não disponíveis.


Detalhes

Área útilenbsp;79m²

Quartos 2

Banheirosenbsp;3

Vagas na garagemenbsp;1


Detalhes do Condomínio

Piscina

Solarium

Lounge

Fitnes

Coworking

Mini Mercado

Espaço Gourmet

Brinquedoteca

Quadra de Futebol

Salão de festas

Lavanderia

Academia

Espaço Pet


Condomínio Skyline Jockey

Comprar R$ 1.064.000,00 Condomínio R$ 0,01 IPTU R$ 0,01 / Anual
Agende uma visita
Imóveis similares

Solicite mais informações sobre o imóvel

Fale comigo no whatsapp
WhatsApp